





















Modular & Intergenerational Community


Who
Hong Kong Institute of Architects
What
8000m2 Residential Tower & Mixed Use Podium
When
2020 - Concept Design
Where
Quarry Bay, Hong Kong
Recognition
Winner
Hong Kong Institute of Architects Young Architect Award 2019
Hong Kong Institute of Architects Young Architect Award 2019
Feature
Cable TV Hong Kong
Metro Radio Hong Kong
RTHK Radio Hong Kong
HKIA Annual Awards 2019/20 Book
HKIA Annual Awards 2019/20 Exhibition
Construction Plus Magazine – Issue 20
World Architecture Community
ArchDaily
e-architect UK
Metro Radio Hong Kong
RTHK Radio Hong Kong
HKIA Annual Awards 2019/20 Book
HKIA Annual Awards 2019/20 Exhibition
Construction Plus Magazine – Issue 20
World Architecture Community
ArchDaily
e-architect UK
Team
Arnold Wong




















Why
Hong Kong is known as a densely populated city with very limited and expensive land supply to build upon, therefore, the proposal re-imagines affordable housing through implementation of Air Rights and Modular Construction.
Site: Strategic location at the end of the Island East Corridor (IEC)
After a decade of urban study, Hong Kong Government had officially awarded the design and construction IEC Boardwalk to a consultant firm in the end of 2019. The IEC Boardwalk is a pedestrian walkway of about 2km long to be constructed underneath the IEC highway bridges from North Point Oil Street to Quarry Bay Hoi Yu Street. Therefore, the proposal is strategically located at Hoi Yu Street for the following reasons:
1. The proposal will further improve pedestrian flow and energize economic activities in the area
2. Potential to use unused air space beneath Island East Corridor
3. Well-established infrastructure for testing Modular Integrated Construction
After a decade of urban study, Hong Kong Government had officially awarded the design and construction IEC Boardwalk to a consultant firm in the end of 2019. The IEC Boardwalk is a pedestrian walkway of about 2km long to be constructed underneath the IEC highway bridges from North Point Oil Street to Quarry Bay Hoi Yu Street. Therefore, the proposal is strategically located at Hoi Yu Street for the following reasons:
1. The proposal will further improve pedestrian flow and energize economic activities in the area
2. Potential to use unused air space beneath Island East Corridor
3. Well-established infrastructure for testing Modular Integrated Construction
Statutory Control: Introduction of Air Rights in Hong Kong to relax limited land supply
Learning from the Air Rights that has been developing in the New York City for the past five decades, part of the proposal makes use of the “Air Space” beneath the highway bridges (Island East Corridor) and preserves the limited “Land Space”. Therefore, the proposal anticipates the Government will lease some of the Air Rights beneath the highway by giving bonus floor area and exemption of site area as an incentive for the developers. Assuming two storeys and 80% of the 2km long Air Space below Island East Corridor are suitable for construction, around 1,300 Residential Units can be built underneath.
Learning from the Air Rights that has been developing in the New York City for the past five decades, part of the proposal makes use of the “Air Space” beneath the highway bridges (Island East Corridor) and preserves the limited “Land Space”. Therefore, the proposal anticipates the Government will lease some of the Air Rights beneath the highway by giving bonus floor area and exemption of site area as an incentive for the developers. Assuming two storeys and 80% of the 2km long Air Space below Island East Corridor are suitable for construction, around 1,300 Residential Units can be built underneath.
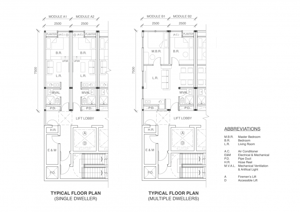
Construction: Modular Integrated Construction with bonus floor area
Modular construction has not been very popular in Hong Kong until the Building Department officially announce in 2019 that 6% of the Modular Integrated Construction (MiC) floor area of a new building may be disregarded from the Gross Floor Area (GFA) of the development upon application. With such, this project fully explores the potential of the MiC with a total length of 216m (building height plus width). The chosen site is also strategic for logistics of MiC as they can be directly unloaded from container ships. Furthermore, this project will be first of its kind to introduce “Suspended Modular Integrated Construction” (SMiC) to work with the aforementioned “Air Right” by suspending under the bridges. The construction will start by completing 3 main structural cores using slipform construction method before installing 317 nos. of MiC comprised of the following 6 programmatic modules:
1. Residential MiC
(One Bedroom MiC can be converted to Two Bedrooms MiC)
2. Sky Garden MiC
3. Library MiC
4. Shop MiC
5. Office MiC
6. Climbing Wall & Back of House MiC
Modular construction has not been very popular in Hong Kong until the Building Department officially announce in 2019 that 6% of the Modular Integrated Construction (MiC) floor area of a new building may be disregarded from the Gross Floor Area (GFA) of the development upon application. With such, this project fully explores the potential of the MiC with a total length of 216m (building height plus width). The chosen site is also strategic for logistics of MiC as they can be directly unloaded from container ships. Furthermore, this project will be first of its kind to introduce “Suspended Modular Integrated Construction” (SMiC) to work with the aforementioned “Air Right” by suspending under the bridges. The construction will start by completing 3 main structural cores using slipform construction method before installing 317 nos. of MiC comprised of the following 6 programmatic modules:
1. Residential MiC
(One Bedroom MiC can be converted to Two Bedrooms MiC)
2. Sky Garden MiC
3. Library MiC
4. Shop MiC
5. Office MiC
6. Climbing Wall & Back of House MiC
People Oriented Design: Versatile and adaptable design for the growing intergenerational demographics
While the project is vertically dense, it also provides a pedestrian-friendly horizontal streetscape for the community and human scale by creating The Social Valley, a central hub that promotes diverse social and engagement opportunities with various active and passive programs:
1. Library with amphitheatre seating area
2. A 10 wide walking & jogging lane for all generations users
3. Climbing facilities for sports enthusiasts
4. Shops and Restaurants operated by residents
5. Central plaza for events and weekend flea market
6. Residents can enjoy the Sky Gardens as a vertical neighborhood
While the project is vertically dense, it also provides a pedestrian-friendly horizontal streetscape for the community and human scale by creating The Social Valley, a central hub that promotes diverse social and engagement opportunities with various active and passive programs:
1. Library with amphitheatre seating area
2. A 10 wide walking & jogging lane for all generations users
3. Climbing facilities for sports enthusiasts
4. Shops and Restaurants operated by residents
5. Central plaza for events and weekend flea market
6. Residents can enjoy the Sky Gardens as a vertical neighborhood